
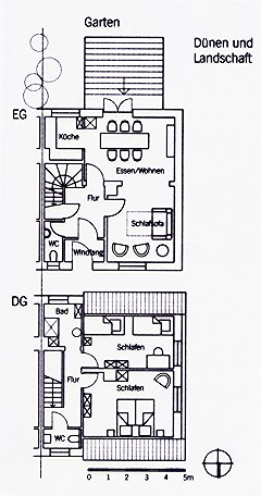
Ein Zuhause für Ihre Ferien
Frischwassertal 7
25992 List auf Sylt
Britta Müller-Kirchenbauer
Blankeneser Hauptstr. 22
22587 Hamburg
Telefon: 040 866 47 445
Mobil: 0177 503 23 26
E-Mail: b@mueller-kirchenbauer.de
IMPRESSUM